Sede Scout: naturaleza, espacios y comunidad

GP35

Un proyecto con raíces

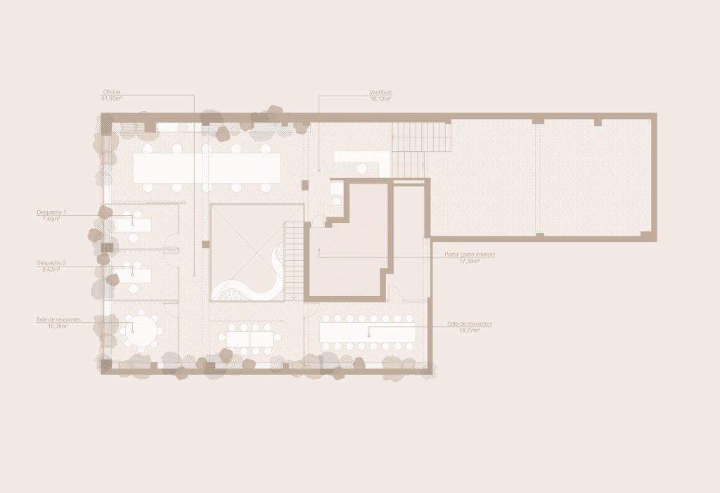
La transformación del local en la nueva sede de los Scouts de España se alinea con sus valores de respeto por la naturaleza, sostenibilidad y comunidad. Con tres niveles, la reforma integral busca maximizar el uso del espacio, destacando un área central a doble altura que evoca un bosque interior, creando un entorno flexible y colaborativo que inspira la vida al aire libre.

Una estética natural

El estilo Raw predomina en el diseño, con una paleta de colores inspirada en la naturaleza: tonos tierra, verdes y ocres. Los beige y arenas en las paredes crean un ambiente sereno, mientras que los verdes aportan frescura. Los acentos en ocres y tejas añaden profundidad y calidez, y materiales como la madera y la cuerda refuerzan el vínculo con la naturaleza, invitando a la colaboración.

La importancia de cada elemento

Cada detalle en la sede refleja los valores de la organización. La madera aporta calidez y un toque rústico, mientras que la cuerda de cabuyería se utiliza como homenaje a las habilidades scouts. Las salas de reuniones modulares permiten adaptarse a diversas necesidades, y los espacios de descanso fomentan un ambiente de camaradería, equilibrando funcionalidad y estética natural.

Cerrando el círculo

El proyecto GP35 ha creado una sede moderna y funcional que refleja la esencia de los Scouts. La combinación de materiales sostenibles, diseño flexible y la integración de la naturaleza ha resultado en un espacio acogedor y eficiente, adecuado para el trabajo diario y eventos formales. Esta intervención celebra y respeta los valores fundamentales de la organización.

COAM – CW

Hortaleza, 63

Madrid 28004